大胆な吹き抜けに光が満ちる 開放的なリビングが主役の住まい
Fさん夫婦は、妻のTさんの故郷・秋田へのUターンを数年前に決めたことから住まいづくりを考えるようになった。「大変だったのは、納得いく土地がなかなか見つからなかったことでした」と2人は振り返る。2021年に入って土地が決まり、本格的に建築をスタートさせた。花田設計はSNSなどで目に留まり、洗練されていてオリジナリティのある家づくりをしていることに魅力を感じたという。
屋根裏まで吹き抜けとなったリビングには、ウッドデッキにつながる掃き出し窓、2階のFIX窓から光がたっぷり降り注ぐ。現しにした梁や天井までダイナミックにそびえる秋田杉張りの間仕切り壁が抜群のインパクト。アイアンやグレーチングなどインダストリアルな素材の取り入れ方も、木質感豊かな空間をきりっと引き締めている。
「関東出身で寒さに不慣れな夫に配慮して、花田さんはこちらの冬に対応した断熱性能について丁寧に説明してくれました」とTさんは話す。開放的な空間を生かして、家全体を暖めてくれるペレットストーブを採用した。
前職はともに住宅設備関係の仕事をしていたというFさん夫妻。キッチンはじめ水回りの設備は知識と経験を生かしてこだわりを持って選択したという。「建築家との家づくりではこちらの要望を言いづらいイメージもあったんですが、花田さんは私たちの思いや要望をじっくり聞いてくれて、期待以上に実現してくれました」と2人はうれしそうに声を揃える。
時間をかけたからこそ満足いく家づくりができた、プロセスも含めて楽しんだというFさん。「ダイニングからガレージ越しに見える景色が好きですね。休みの日、朝日を浴びつつ外を眺めてくつろぐのが至福の時間です」と笑顔を見せる。
壁やドアの塗装をするなど家づくりの一部にDIYを取り入れた。今後はさらに庭を整えるなど2人で手を加えていくのを楽しみにしているという。
DATA
| 床材 | 無垢(オーク)、 長尺塩ビシート |
|---|---|
| 内壁材 | ビニールクロス、 塗り壁(ポーターズペイント |
| 屋根材 | ガルバリウム鋼板 |
| 外壁材 | ガルバリウム鋼板、 木材(杉) |
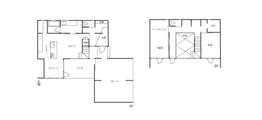
設計 / 有限会社花田設計事務所 | 施工 / 株式会社西村建設 | 竣工 / 2022/4 | 構造・工法・規模 / 木造軸組工法・2階建 | 敷地面積 / 302.73㎡(91.57坪)| 床面積 / 139.64㎡(42.24坪)/ 1階 59.62㎡(18.03坪)2階 45.24㎡(13.69坪)インナーガレージ 34.78㎡(10.52坪)ウッドデッキ 12.42㎡(3.75坪)
暖房設備 / ペレットストーブ | 給湯設備 / エコジョーズ(ガス)| バス / TOTO サザナ | トイレ / 1 階 TOTO ネオレストAH1、2階 TOTO GG1 | キッチン / TOTO クラッソ | 調理設備 / ガス | 窓仕様 / 複合樹脂複合サッシLow-E ペアガラス | 断熱材 / グラスウール、ウレタンフォーム | 換気システム / 第3種換気
建築総工費 / 3,100万円台
坪単価 / 70~75万円




















