家族の時間と個の時間を ともに充実させる家
南側に面したLDKにはたっぷりと陽光が降り注ぎ、冬の一日も明るく暖かく過ごせる。「一日の大半を1階で過ごしますが、よく日光が入るため日中は暖房を入れなくても暖かいし明るくて快適です。夜は冬でも薄着で寝てちょうどいいくらいです」と妻のKさん。
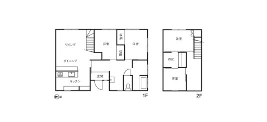
以前から住んでいた住居の傷みが進んだことを機に、建て替えをすることにしたというF邸。間取りは、Fさんの案を元にブラッシュアップしていったという。当初は平屋も視野に入れていたが、暮らしやすさを考えていくうちに、家族が長く過ごすリビングを1階の中心に据え、2つの寝室を1階に、残る2つの寝室を2階に配置するシンプルな形で落ち着いた。「電話でもやり取りしながら間取りを詰めていきましたが、高さや幅などを決める場合は直接お会いし、イメージと実物のズレがないよう確認しながら進めました」と設計担当の五十嵐さんは振り返る。
家族の希望で、旧住居で使っていた木材を積極的に再利用。年月を経て飴色に輝くケヤキのキッチンカウンターやエンジュの床柱は、新居でも変わらず家族を見守っている。LDKの床と天井には無垢の秋田スギをふんだんに使用。さらっとした足触りと木の香りが心地よく、白を基調とした温もりを感じる室内となっている。
2階はウォークスルークローゼットを挟む形でKさん、長男の寝室がそれぞれ設けられている。収納を1カ所にまとめることで個室の面積を広げることができるため、勾配天井がもたらす開放感も相まってゆったりとした印象を感じさせる。
「家の前の花壇には、春に向けて球根を植えました。春が楽しみ」とKさん。自宅で家庭菜園や花壇の手入れがしたいとの希望を叶え、満足そうな笑みをたたえる。家の裏手で、野菜作りに励む姿が印象的だった。
DATA
| 床材 | 無垢(秋田杉) クッションフロア |
|---|---|
| 内壁材 | ビニールクロス |
| 屋根材 | ガルバリウム鋼板 |
| 外壁材 | ガルバリウム鋼板 |
設計・施工 / 扇建設株式会社 | 竣工 / 2022/10 | 構造・工法・規模 / 木造軸組工法・2階建 | 敷地面積 / 606.34㎡(183.41坪)| 床面積 / 112.61㎡(34.06坪)/ 1階79.49㎡(24.04坪) 2階33.12㎡(10.01坪)
暖房設備 / ヒートポンプエアコン(電気)| 給湯設備 / エコキュート(電気) | バス / タカラ レラージュ | トイレ / LIXILサティス | キッチン / タカラ トレーシア| 調理設備 / IH | 窓仕様 / 樹脂サッシLow-Eペアガラス | 断熱材 / グラスウール | 換気システム / 第3種換気 | UA値╱0.45 W/㎡K | C値╱0.29㎠ /㎡
建築総工費 / 2,200万円台
坪単価 / 60~65万円


















