暮らしの工夫がぎゅっと詰まった、 子育て世代の家づくり
第二子の妊娠がわかったタイミングで家づくりをスタートしたSさん夫妻。じつは数年前にSさんの両親もミノル建築で実家を建て替えたばかりだった。Sさん親子は住宅建築に関わる仕事を家業としており、「実家の建て替えもミノル建築の現場も間近で見てきて、良い仕事をするビルダーだと安心感がありました」とビルダー選びの経緯を振り返る。
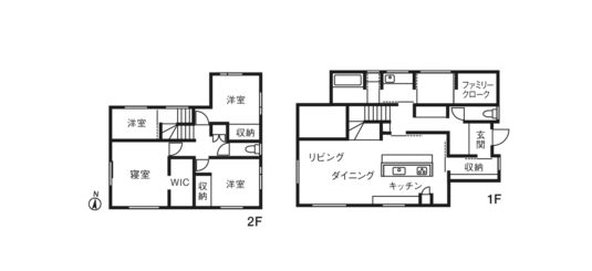
S邸の見どころのひとつが、リビングの一角を掘り下げ、その上を中二階とした重層的なつくりになっている点だ。下部は収納だが、子どもたちが小さいうちは遊び場としても活用。「秘密基地のようで子どもの友人にも評判がいいです」とSさん。中2階の和室は大人は客間や書斎としても使えるほか、子どもたちが大きくなったらスタディコーナーにもなる。遊び心と実用性を兼ね備えたつくりは、職業柄さまざまな住宅建築を見てきたというSさんのこだわりだった。
動線にも工夫が光る。玄関からシューズクローゼットを抜けてキッチンへ直行できるようにレイアウトしたのだ。「設計の松本さんに相談しながらレイアウトをいろいろ検討しました。暮らしやすい動線に満足しています」と妻のEさんは話す。
また、脱衣・洗面・洗濯室・ファミリークローゼットを一直線に並べたのもEさんのアイデア。洗濯から収納までが最短距離で完結するので、家事の負担が軽減したと話す。Sさんの希望で洗面台はゆったりと広く、深さが特徴のTOTOの病院用流しを採用。「ベビーバスにも便利だったし、今後も汚れ物などの下洗いなどさまざまな場面で活躍しそうです」とSさん。
暮らしを快適にするための工夫が、家族の時間をより豊かに育てていく。そんなアイデアが詰まった、頼もしい住まいとなっている。
DATA
| 床材 | 複合(合板)フローリング、 クッションフロア、 フロアタイル |
|---|---|
| 内壁材 | ビニールクロス |
| 屋根材 | 陶器瓦 |
| 外壁材 | 金属系サイディング |
設計・ 施工 / 有限会社ミノル建築 | 竣工 / 2024/8 |構造・工法・規模 / 木造軸組工法・2階建 | 敷地面積 / 295.17㎡(89.11坪)| 床面積 / 116.61㎡(35.20坪)/ 1階 66.93㎡(20.20坪)、2階 49.68㎡(15.00坪)
暖房設備 / ヒートポンプエアコン(電気)| 給湯設備 / エコキュート(電気)| バス / タカラスタンダード リラクシア | トイレ / TOTO GG、TOTO ZJ2 | キッチン / タカラスタンダード オフェリア | 調理設備 / IH | 窓仕様 / 樹脂サッシLow-E ペアガラス | 断熱材 / ウレタンフォーム | 換気システム / 第1 種換気 |太陽光発電設備╱4.92kw | ZEH | UA値╱0.45W/㎡K
建築総工費 / 2,300万円台
坪単価 / 65~70万円






















